
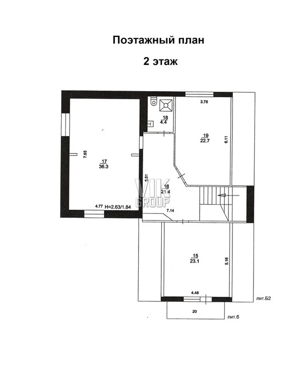
Продается прекрасный трёхэтажный кирпичный жилой дом по ул Щорса 16А в гор Сергиев Посад Московской области. Коттедж возведен по индивидуальному проекту в 2005г. Удобная и функциональная планировка, общей площадью с учетом холодных помещений 353кв. м. На 1 этаже располагается просторная прихожая 10кв.м; вместительный холл 21кв.м; шикарный светлый зал 33кв.м с двухцветным потолком и точечными светильниками; гостевая комната 23кв.м; большая кухня-гостиная 26кв.м с кухонным гарнитуром и техникой (газовая варочная панель, вытяжка), кондиционером; раздельный санузел с джакузи. На 2 этаж ведет широкая деревянная лестница, в холле - скрытый чердачный люк с выдвижной лестницей. На этаже комнаты с индивидуальным дизайном: 37кв.м (зонирована арочным проёмом с точечными светильниками) - 23кв.м (с выходом на балкон с кованным ограждением) - 23кв.м; совмещённый санузел. Интерьер здания выстроен на контрасте стилей: 1 и 2 этажи оформлены в классическом стиле в светлых тонах с точечными светильниками, а цокольный уровень выполнен в атмосфере старинного замка. На цокольный этаж ведет бетонная лестница, стены отделены натуральным камнем с декоративными светильниками в форме факелов, потолок- деревянными балками, завершают образ натуральные деревянные двери с кованными металлическими петлями и ручками в виде кольца, все это создаёт эффект средневековья. В основном пространстве этажа расположена барная стойка (с фактурной каменной отделкой, стеллажом с зеркальной поверхностью и подсветкой), действующий камин (отделан натуральным камнем), подиум, помещения свободного назначения: 76-15-16кв.м, котельная с выходом на территорию, санузел. Высота потолков до 3,2м. Дизайнерский ремонт выполнен из высококачественных материалов: на полах ламинат и плитка, на окнах стеклопакеты, двойные потолки с подсветкой и точечными светильниками, установлена домофон, сигнализация, видеонаблюдение, спутниковое ТВ. Все центральные коммуникации: водопровод, канализация, электро и газоснабжение; установлен автоматический регулятор отопления calor MATIC 300, конденсационный напольный газовый котел Vaillant eco VIT, водонагреватель косвенного нагрева Vaillant 300.Кадастровый № 50:05:0000000:19209. Стены коттеджа выложены в два кирпича, дом внешне окрашен и отделан камнем, крыша – металлочерепица, фундамент- ж/б блоки, перекрытия- ж/б. Участок ровный, правильной формы 10,5 соток, по периметру огорожен двух метровым забором из металопрофиля на кирпичных столбах, дорожки вымощены тротуарной плиткой с уличными светильниками. На территории построена летняя беседка с мангальной зоной (12кв.м) и отапливаемый хозблок. Кадастровый № 50:05:0070103:217. Категория: земли населенных пунктов, использования: для индивидуального жилищного строительства. Отлично развитая инфраструктура в 2км: школы, детские сады, поликлиники, магазины, МФЦ. В 10 минутах пешком остановка общественного транспорта. 60 км до МКАД по Ярославскому шоссе. 1 собственник, полная стоимость в ДКП.
26950000 руб. | 408283 $ | 357798 €